Kotli na drva – ekonomično, zanesljivo in tradicionalno ogrevanje za domove in podjetja
Kotli na drva – ekonomično, zanesljivo in tradicionalno ogrevanje za domove in podjetja
Ogrevanje z drvmi ostaja ena izmed najbolj stabilnih in ekonomsko upravičenih rešitev za gospodinjstva. V času nihajočih cen energije in negotovosti na trgu mnogi lastniki stanovanj in večjih objektov iščejo zanesljiv sistem, ki zagotavlja visoko zmogljivost, predvidljive stroške in dolgotrajno delovanje. Prav zato Kotli na drva še naprej zasedajo pomembno mesto med priljubljenimi ogrevalnimi rešitvami.
Ta vrsta ogrevanja se odlikuje z visoko učinkovitostjo, če je izbrana moč primerna in je namestitev pravilno zasnovana. Dodatna prednost je dostopnost drv v mnogih regijah, kar olajša načrtovanje obratovalnih stroškov. Z dobro vzdrževano in pravilno uporabo lahko kotel na drva zagotavlja stabilno ogrevanje vrsto let brez potrebe po kompleksni avtomatizaciji ali dragi infrastrukturi.
.png)
Kaj je kotel na drva
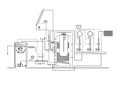
Kotel na drva je ogrevalna naprava za centralno ogrevalni sistem, ki uporablja trdno gorivo (drva) za ogrevanje vode. Ogreta voda kroži po cevnem sistemu do radiatorjev ali talnega ogrevanja in zagotavlja enakomerno temperaturo po celotni stavbi.
V nasprotju s standardnimi pečmi in kamini je kotel zasnovan za ogrevanje celotnega objekta, ne samo posamezne sobe. Deluje kot glavni vir toplote in ga je mogoče kombinirati z akumulacijskim rezervoarjem za večjo učinkovitost in redkejše nalaganje. Glede na model in konstrukcijo kotli na drva ponujajo različne stopnje učinkovitosti in nadzora izgorevanja. Sodobne rešitve so zasnovane za optimizacijo izgorevanja lesa in zmanjšanje toplotnih izgub, zato so primerne tako za novogradnje kot nadgradnje obstoječih ogrevalnih sistemov.

Kako deluje kotel na drva
Delovanje kotlov na drva temelji na izgorevanju trdnega goriva in prenosu proizvedene toplote v vodno plašč (izmenjevalec toplote). Ko se drva vžgejo, nastane toplota, ki se uporablja za ogrevanje vode v kotlu. Cirkulacijska črpalka razporeja vročo vodo po ogrevalnem sistemu, nato pa se ohlajena voda vrne v kotel za ponovno ogrevanje.
Sodobni modeli se delijo na več glavnih vrst:
- Standardni kotli z naravno konvekcijo
- Kotli z ventilatorjem za prisilno konvekcijo
- Pirolizni (plinski) kotli z višjo učinkovitostjo
Pirolizni kotli zagotavljajo bolj popolno izgorevanje lesnih plinov, kar vodi do manjše porabe goriva in zmanjšanih emisij.


Primene za kotle na drva
Kotli na drva so primerni za objekte, opremljene z vodnim ogrevalnim sistemom. Najpogosteje se uporabljajo v:
- Enodružinskih hišah
- Vilah in podeželskih posestvih
- Majhnih stanovanjskih blokih
- Delavnicah in skladiščih
- Industrijskih halah
- Javnih stavbah v območjih brez plinskega omrežja
Posebej učinkoviti so v regijah, kjer so drva enostavno dostopna in cenovno ugodna.
Kako izbrati pravo moč
Izbira ustrezne moči je eden najpomembnejših dejavnikov pri nakupu kotla. Premalo moči ne zagotavlja ustreznega udobja, preveč moči pa vodi do neučinkovitega delovanja in nepotrebne porabe goriva.
Pri določanju potrebne moči se upoštevajo naslednji dejavniki:
- Skupna površina
- Višina stropov
- Toplotna izolacija
- Vrsta oken in vrat
- Klimatska cona
Kot splošno pravilo lahko 1 kW moči ogreje približno 10 m² ob dobri izolaciji in standardni višini stropa. Na primer, za hišo velikosti 150 m² je običajno priporočljiv kotel na drva z močjo med 15 in 20 kW.
Glavne prednosti kotlov na drva
Kotli na drva so priljubljeni zaradi več ključnih prednosti. Zagotavljajo ekonomično ogrevanje in dolgo življenjsko dobo, še posebej, če so izdelani iz visokokakovostnega jekla.
Njihove glavne prednosti vključujejo:
- Nizki stroški goriva
- Visoka ogrevalna zmogljivost
- Primerni za velike površine
- Relativna neodvisnost od dobaviteljev energije
- Nižja začetna investicija v primerjavi z avtomatiziranimi sistemi, kot so Kotli na pelete ali kompletni Kotli na pelete (kompleti)
Pomanjkljivosti, ki jih je treba upoštevati
Kljub svojim prednostim Kotli na drva zahtevajo večjo vključenost uporabnika. Niso popolnoma avtomatizirani in potrebujejo redno vzdrževanje.
Glavne pomanjkljivosti vključujejo:
- Ročno nalaganje goriva
- Potrebna je shramba za drva
- Občasno čiščenje pepela
- Nižja raven udobja v primerjavi s sistemi na pelete, kot so Peči na pelete za centralno
Razlika med kotli na drva in kotli na pelete
Kotli na pelete so sodobna alternativa tradicionalnim kotlom na drva. Glavna razlika je v stopnji avtomatizacije in načinu dovajanja goriva.
Kotel na drva se nalaga ročno in zahteva redno spremljanje. Začetna investicija je običajno nižja, gorivo pa je pogosto cenejše in bolj dostopno.
Kotli na pelete imajo avtomatsko dovajanje goriva, elektronski nadzor in programabilne načine delovanja. To omogoča večje udobje in natančnejše upravljanje temperature, vendar je začetna investicija višja.
Izbira med obema možnostma je odvisna od proračuna, želene stopnje avtomatizacije in razpoložljivosti goriva v posamezni regiji.
Razlika med kotlom na drva in pečjo na pelete za centralno
Peči na pelete za centralno se lahko prav tako priključijo na ogrevalni sistem, vendar imajo običajno nižjo zmogljivost in kombinirajo ogrevanje predvsem z dekorativno funkcijo.
Kotel na drva je zasnovan predvsem za stalno in učinkovito ogrevanje celotnega objekta, zagotavlja višjo moč in boljšo učinkovitost pri dolgotrajni uporabi.
Kaj preveriti pred nakupom
Pred dokončno odločitvijo je pomembno, da se posvetimo tehničnim specifikacijam in kakovosti izdelave.
Glavni parametri, ki jih je treba upoštevati, vključujejo:
- Nominalna moč (kW)
- Učinkovitost (toplotna učinkovitost)
- Debelina jekla
- Vrsta kurišča
- Prisotnost ventilatorja
- Združljivost z akumulacijskim rezervoarjem
- Garancijski pogoji in servisna podpora
Katera drva so najbolj primerna
Učinkovitost kotla na drva ni odvisna le od modela, ampak tudi od kakovosti uporabljenega goriva. Najboljši rezultati se dosežejo z suhim, trdim lesom, kot so:
- Hrast
- Bukev
- Grab
Vlažnost drv naj bo pod 20%, saj mokra drva zmanjšujejo učinkovitost in povečujejo nabiranje saj.

Pogosta vprašanja (FAQ)
Kako pogosto je treba nalagati kotel na drva?
Običajno je nalaganje potrebno vsakih 3 do 6 ur, odvisno od moči kotla, zunanjih temperatur in izolacije stavbe.
Ali lahko kotel na drva deluje brez elektrike?
Nekateri modeli z naravno cirkulacijo lahko delujejo brez elektrike, vendar večina sistemov uporablja cirkulacijsko črpalko in zahteva napajanje.
Ali je potreben poseben dimnik?
Da, pravilno dimenzioniran dimnik je ključnega pomena za dober vlek in varno delovanje sistema.
Koliko časa traja življenjska doba kotla?
Ob pravilnem vzdrževanju lahko kotel deluje med 10 in 20 let.
Koliko drv je potrebno za eno ogrevalno sezono?
Povprečno hiša velikosti 120–150 m² potrebuje med 8 in 15 m³ drv, odvisno od kakovosti izolacije in klimatskih razmer.
Kotli na drva ostajajo praktična in ekonomična rešitev ogrevanja, zlasti na območjih brez plinskega omrežja. Zagotavljajo visoko moč in relativno nizke obratovalne stroške, vendar zahtevajo večjo vključenost uporabnika.
Prava izbira je odvisna od velikosti objekta, razpoložljivega proračuna in želene stopnje udobja. Ob pravilni izbiri in strokovni namestitvi lahko kotel na drva zagotavlja zanesljivo ogrevanje vrsto let.
Oglejte si tudi:



